BMW 5 series (F10) (Бандітка 2.0)

Дооснащення S5ALA Active Protection

Я їжджу на BMW 5 series (F10)
Львів, Україна

Коли перечитував дописи @DimAssBMW  бо був в процесі дооснащення і наткнувся на його допис про активні ремені. 

Я почав шукати як собі це додати. Якщо шукати такі ремені для F10 то ціни трохи більші ніж я готовий був витратити. Але як виявилось що REMA ремені ставились в базі для F01/02 (відповідно до каталогу). Тож я почав шукати такі ремені від 7 серії і знайшов. Там є різниця між дорестом і рестом - я собі шукав саме рест.(різниця наче у розємі підключення)

Тож були придбані два ремені від рестової 740. Коли я отримав ремені - мені здалось що вони мали спрацьовану безпеку адже не міг розмотати. Але виявилось для того щоб вони розмотались вони мають бути в положенні як вони стоять в машині - ну і все виялось працюючим.





Окрім ремені треба ще додатково два болти які додатково кріплять ремені - 41007243852

І проводка - я хотів розписати окремо що треба адже я збирався замовляти все окремо нове але знайшов розборку яка витягнула мені проводку з коси від 7ї серії. Тож я мав цілий комплект проводки для активних ременів. (Діставали з коси 2:30 години вдвох- зі слів продавця)




Далі процес монтажу.

Заміна ременів не така складна. Треба зняти старий і поставити новий. Ну і провести проводку від ременів.



Маса до шини у водія і пасажира в ногах

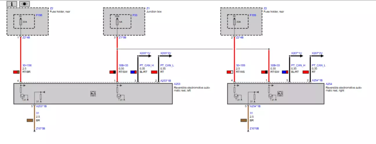
або ось схема, щоб ви не шукали:



По силовому плюсу в окремі запобіжники в багажнику

CAN я підʼєднався аж в багажнику бо зі сторони водія я не найшов де підключитися

Ну і по по плюсу які підключаються в один запобіжник за бардачком.

Далі прошиваю опцію 5AL через esys і в той же вечір я поїхав перевірити. Чомусь я очікував вау ефекту але це мої очікування. В цілому прикольно - не шкодую. Адже в парі з kafas воно має більше безпекових можливостей. (На момент написання цього допису в чорнетку - kafas не був встановьений)


Реклама
Комплексне обслуговування автокондиціонерів: повертаємо ідеальний клімат в авто з першого разу
#Паски безпеки , #безпека , #ремні безпеки , #система безпеки водія
Ціна питання 200 USD, Пробіг 174000 км.
Опубліковано: 11 квітня 14:39
0 0 0

Коментарі

Щоб залишати коментарі, потрібно авторизуватись.