По мере появления свободного времени — продолжим.
Собственно в первой части писал про панель от BMW. Нашел фото. Вот она:



Как видно, это 8 ламп (включая повороты), одометр, спидометр, температура и топливо. Скудно.
В этой части, и еще нескольких, я больше коснусь технической части авто.
По скольку микроавтобус аж 1993 года выпуска, то пришлось отсеять некоторые хотелки по отображению информации. Однако многое осталось, и вот что я хочу вывести на экран:
1) Спидометр — что может быть проще, однако у меня на приборке скорость отображается от 20 км/ч и дико не точные показания. А чего можно ждать от привода тросиком?
2) Тахометр — разработчики в Германии, видимо, накурились, когда разрабатывали панель приборов для наших машин, и вместо нужного тахометра вставили огромные стрелочные часы! Этот факт заставил меня заняться идеей заменить приборку на что то с тахометром.
3) Одометр — в моей нынешней приборке это куча барабанов с циферками. Показывают общий пробег и суточный. Добавится еще обратный отсчет до ТО.
4) Температура охлаждающей жидкости (температура двигателя) — перегрев дизеля AAB — смерть головке блока цилиндров. Потому надеюсь на более точные показания температуры.
5) Уровень топлива — на данный момент это какие то абстрактные показания. При должной калибровке датчиков — кто установил себе Venator говорили о показаниях до литра.
6) Температура за бортом — думаю ничего пояснять не нужно.
7) Температура в салоне — тут тоже вроде все понятно.
8) Индикация включения поворотов и аварийной сигнализации — на панели это стрелки в нужном направлении или обе вместе. У меня часто левая зажигается в пол накала. Аж бесит.
9) Индикация включения габаритов — и с этим все ясно.
10) Индикация включения ближнего и дальнего света фар. Даже сейчас есть яркий синий диод, говорящий о включении дальнего света. Дабы не слепить встречных.
11) Индикация низкого уровня охлаждающей жидкости.
12) Индикация низкого и высокого давления масла — по скольку у нас стоит два датчика масла, а лампа одна — пусть так и останется в дальнейшем.
13) Индикация включения свечей накала.
14) Индикация подзаряда аккумулятора. С этой лампой просто куча воспоминаний. Теперь она у меня светит постоянно. С генератора выходит 14,7, а к блоку реле приходит только 7,4 вольта. Благо есть вольтметр, по которому определяю возбуждение генератора. Надо менять провод, но зима…
15) Индикация включения ручного тормоза — несколько раз уже думал, чего это машина не едет. Убираю телефон — светится… Не удобно расположили.
16) Напряжение в бортовой сети. Вместо колхозного вольтметра.
17) Индикация открытия дверей (двери, сдвижка, ляда). На данный момент только сам факт открытия. Однако если удастся договориться, то открытие каждой в отдельности.
18) Индикация включения вентиляторов радиатора. Это та же больная тема для AAB. Перегрев — смерть ГБЦ.
19) Индикация включения противотуманных фар.
20) Лично для себя хочу вывести индикатор включения стопов.
21) Возможно, в далеком будущем, я себе поставлю индикацию пристегивания ремней безопасности. Но пока об этом речи не идет.
Теперь о датчиках. Для всего того, что я перечислил — нужно с чего то считывать информацию. Остановимся по каждому пункту подробнее, но по выдаваемым показаниям и калибровке остановимся детально уже при установке и настройке на авто.
1) Спидометр. В таких автомобилях, как у меня спидометр приводится от коробки передач с помощью тросика. Но гениальные разработчики коробок передач в Германии в тот период не курили и изобрели датчик, который можно легко установить в штатное место привода тросика.

Этот датчик я еще не приобрел, но собираюсь в скором времени.
Для большинства коробок передач соотношение спидометра идет одинаковое. Но есть различия. У меня коробка CRL. Вот её параметры. Вдруг кому понадобится.
Количество передач: 5
Тип коробки передач: 02B
Обозначение коробки передач: CRL
Время производства: 09.1993-12.1995
Передаточное отношение: Z2:Z1
Главная передача: 83 : 18 = 4,611
Первая передача: 34 : 9 = 3,778
Вторая передача: 36 : 17 = 2,118
Третья передача: 35 : 24 = 1,458
Четвертая передача: 35 : 34 = 1,029
Пятая передача: 36 : 43 = 0,837
Шестая передача: Нет
Задняя передача: 18 : 9 x 36 : 20 = 3,600
Привод спидометра: 12 : 20 = 0,600
На высшей передаче: 3,859
Объем масла 2,5 Л:
Спецификации трансмиссионного масла: G50 SAE 75W90 (Синтетическое)
Тип сцепления: Сухое, однодисковое с тарельчатой пружиной
Диск сцепления: ø 228 mm
Приводные вал-Фланец: ø 108 mm
Приведение в действие сцепления: Гидравлическое
Выжимной подшипник: Шариковый
Регулировка педали сцепления: Без регулировки
Интересует соотношение привода спидометра — 0,600. Запомним эту цифру на будущее.
2) Тахометр. Существует два типа формирования сигнала тахометра на наших автомобилях. Первый — от датчика положения коленвала. Сигнал идет в ЭБУ и передается в приборную панель. Второй — частота вырабатываемого генератором тока (напряжения, не знаю как правильно сказать). Снимается с пина W на генераторе. Этот вывод идет до выпрямления для подзарядки батареи и питания оборудования авто. По сути это частота оборотов ротора генератора. Такая частота гораздо выше частоты от датчика коленвала, и, зачастую, владельцы бусов Т4, покупая приборки где то с рук, в интернете, на разборках, попадаются на этом. Панельки ведут себя идеально, однако тахометр показывает белеберду. Мы же вольны выбирать от какого датчика хотим подключаться. Просто меняем цифры в скетче для Arduino. Тут подходим к самому серьезному. На наших бусиках устанавливалось всего несколько типов генераторов. У большинства вывод W есть. У некоторых даже подключен (если приборка уже с дисплеем). Но у некоторых генераторов этого вывода просто нет. Таким людям могу только посочувствовать. Придется либо менять генератор, либо колхозить вывод до выпрямителя. Мне же повезло. У меня вывод есть, но не подключен.
3) Одометр. Эта штуковина тесно связана со спидометром. В программе задается нынешний пробег и интервал ТО. Остальное сделает программа. Рассказывать собственно нечего.
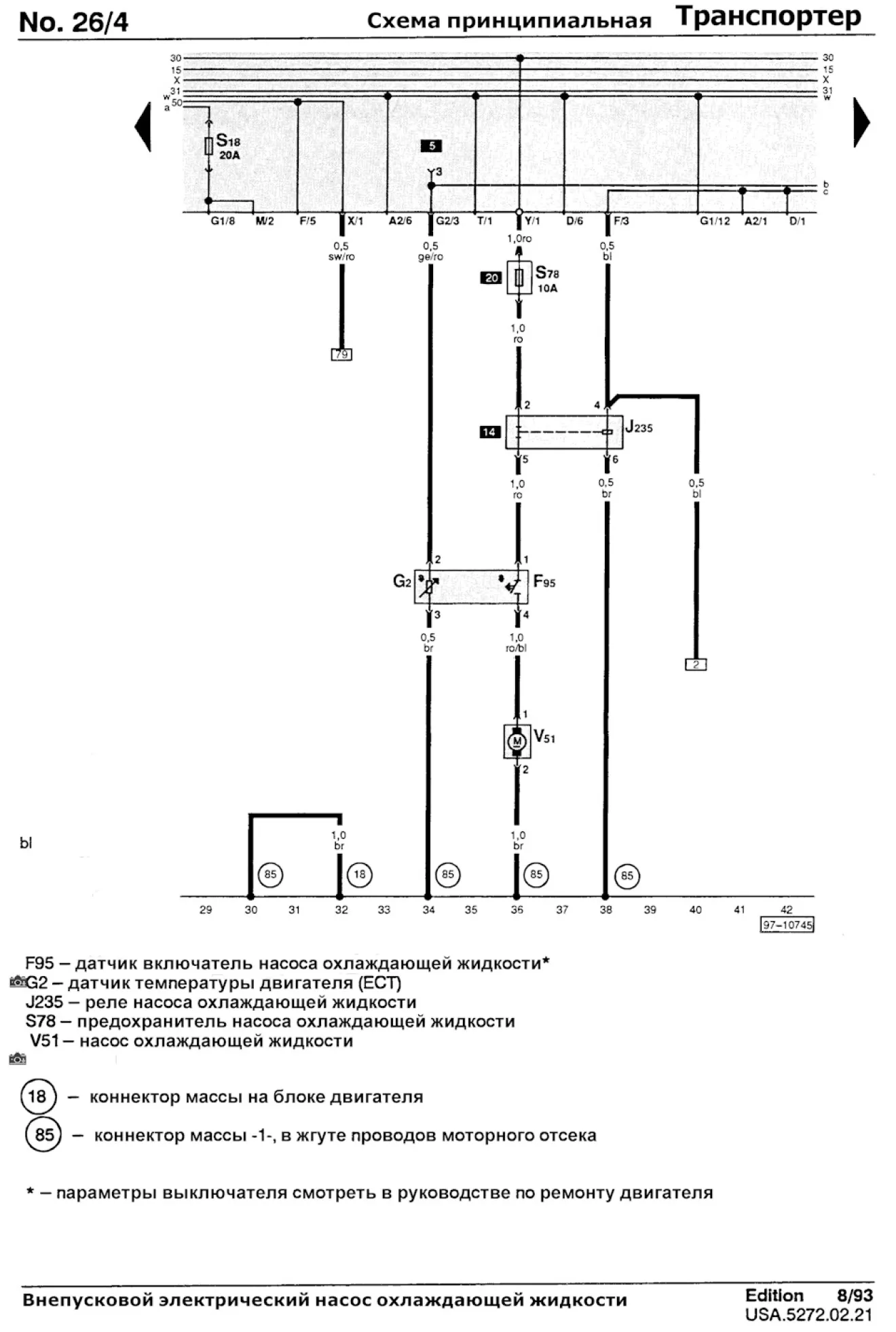
4) Температура охлаждающей жидкости. На моем двигателе установлен датчик температуры двигателя четырехконтактный. Находится он внизу двигателя (доступ только снизу). Два контакта идут на реле включения электрической помпы. Другие два контакта идут на показометр на приборной панели. Этот датчик обозначен как G2 на схеме. Для показометра использованы контакты 2 и 3.

Для того, чтоб не копаться в проводке автомобиля еще и по этому поводу, можно просто откусить от разъема G2/3 (второй разъем G, в котором третий контакт) провод, который должен быть желтого цвета с красной полосой, подключиться к жгуту, идущему к приборке разъем U2/9 (второй разъем U, в котором девятый контакт), а так же третий контакт реле №5. Обычно на таких авто релюхи нет. Но лучший способ — найти второй конец провода от разъема U2/9, который, собственно, вставляется в старую приборку (к сожалению у меня нет распиновки разъема приборки, да и разъем все равно нужно будет убирать). Провода к приборке идут все (1 или 2 отличаются) белого цвета.
5) Уровень топлива. Этот датчик знаком многим. Встречается на, практически, всех авто. Установлен на топливном баке. Имеет 2 контакта. На схеме отображен как G.

Из-за расположения оба контакта идут от блока реле. Второй контакт идет на массу, а первый, блуждая по блоку реле, выходит к разъему U1/12 (первый разъем U, двенадцатый контакт). И снова таки белый провод, идущий к разъему приборной панели.
К сожалению работа зовет. Остальные датчики рассмотрим в следующий раз. Спасибо за внимание.
Пробіг 435000 км.